Ráckeve Hajnal u.

Képek

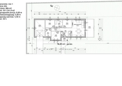
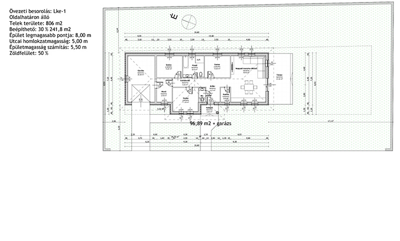
Műszaki adatlap

Ráckevén a Hajnal utcában 1 db családi ház.

Ahogy már a Cégünktől megszokott,

Szintén egy nyugodt csendes helyen próbálunk új otthont teremteni Önnek!